04 мая,
понедельник
самовывоз
обратный звонок
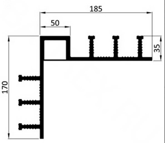
Профилированный рулонный материал из пластифицированного поливинилхлорида.
Область применения
Гидроизоляции деформационных швов с разным уровнем основания в монолитных конструкциях типа "фундаментная плита-фундаментная плита" или "стена-стена".
Способ установки
При герметизации деформационных швов в фундаментной плите одно плечо укладывается на бетонную подготовку и при необходимости фиксируется клеевыми составами, а другое, крепится к опалубке в области кромки с помощью гвоздей с шагом 300 мм. Затем гвозди отгибаются на угол 45-50° так, чтобы при снятии опалубочных щитов гвозди не вырвало из тела бетона.
При герметизации деформационных швов в стенах крепятся к опалубке в области кромки с помощью гвоздей с шагом 300 мм, с последующим их отгибанием. Соединение гидрошпонок между собой рекомендуется производить с помощью сварочного топорика (термоножа) мощностью 200-300 Вт или аппарата по сварке горячим воздухом.
Конструктивные решения
Деформационный шов в фундаментной плите
Деформационный шов в стене

Упаковка и хранение
Поставляются в бухтах по 20 п.м.
Защищать от влаги и прямых солнечных лучей.
Гидрошпонка ПВХ Icopal ДН-У 320/35/50-Н наружный угол купить, узнать лучшую цену на Гидрошпонки или подобрать аналоги, можно по телефону +7(495)995-23-22.
Фундамент является одной из самых важных частей здания, поскольку он не только обеспечивает его надежность и прочность, но и защищает от негативного воздействия влаги и грунтовых вод. Для обеспечения надежной гидроизоляции фундамента используются различные материалы и технологии.
Одним из основных видов гидроизоляции является герметизация деформационного шва фундамента с помощью гидрошпонок. Этот метод позволяет создать надежную защиту от проникновения влаги и обеспечить долговечность и надежность фундамента.
Бетонные конструкции являются основой многих строительных проектов. Однако, они подвержены различным воздействиям, которые могут привести к их разрушению. Одной из основных причин разрушения бетонных конструкций является воздействие влаги. Вода может проникать в бетон через микротрещины и поры, вызывая их расширение и разрушение конструкции. Для предотвращения таких проблем используются гидрошпонки.


